Rock Hill
South CarolinaWelcome to Rock Hill
Homes for Sale In Rock Hill
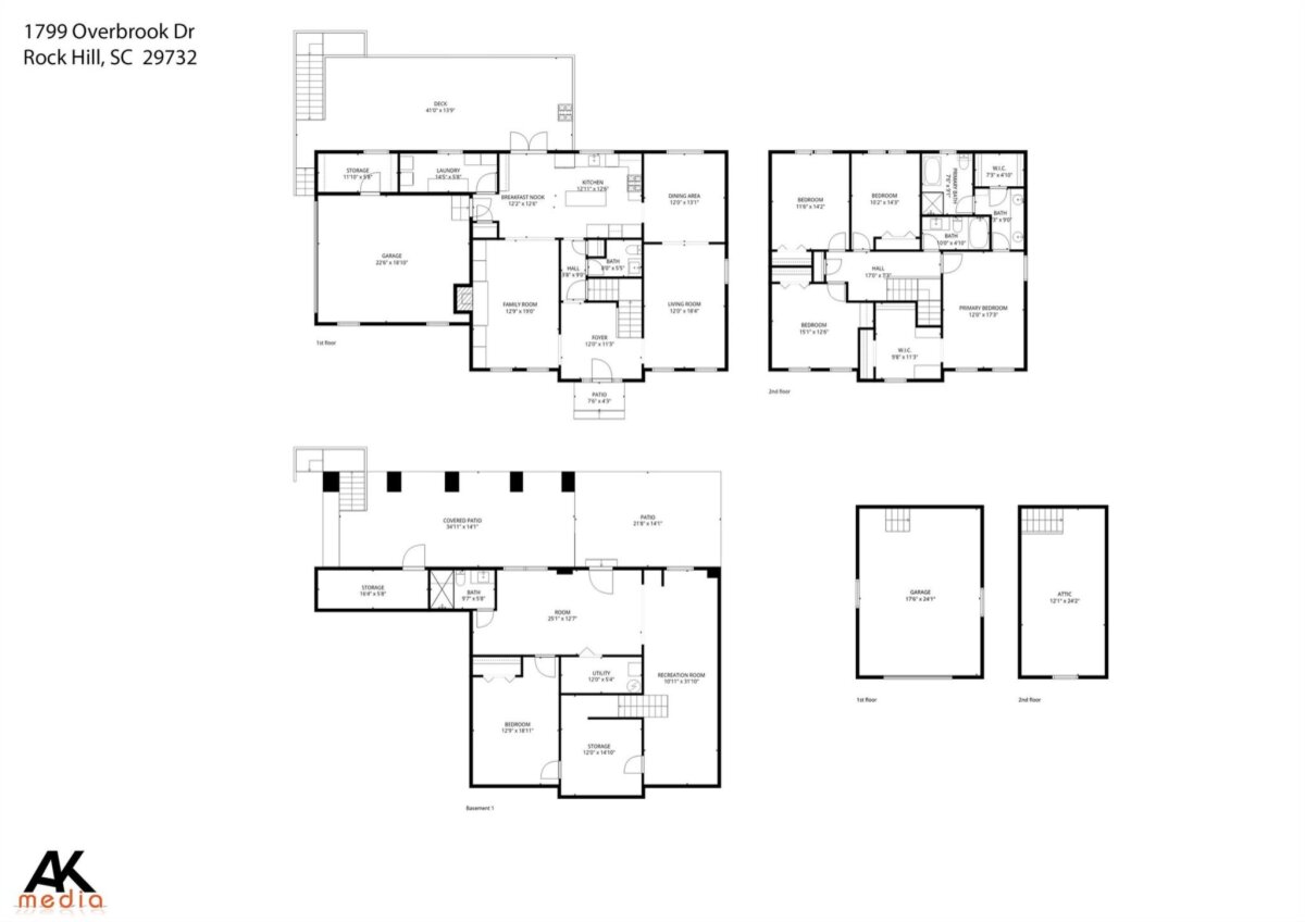
Welcome to this 4,000 sq ft, 5-bedroom, 3.5-bath all-brick residence in the highly sought-after Shiland Hills, with 1.5 acres, an expansive yard, privacy, and flexibility for everyday living and entertaining. Offering two driveways, large deck, expansive retaining walls and boulder accents. The interior is framed by new black Andersen windows that flood the home with natural light. The heart of the home is the stunning kitchen, featuring new solid wood cabinetry, premium appliances, and abundant storage, perfect for gatherings. Bathrooms feel like a private spa with floor-to-ceiling tile, and elevated fixtures. A new roof, gutters and down spout system add beauty and peace of mind. With five spacious bedrooms, cozy living areas, - 4,000 sq ft -1.5 acres with flat yard -Shiland Hills -All-brick construction -Two driveways -5/3.5 bed/bath -Black Andersen windows -New roof -Fully finished basement
| MLS#: | 4346399 |
| Price: | $734,999 |
| Square Footage: | 4058 |
| Bedrooms: | 5 |
| Bathrooms: | 3.1 |
| Acreage: | 1.5 |
| Year Built: | 1980 |
| Type: | Single Family Residence |
| Listing courtesy of: | Homecoin.com - info@homecoin.com |
Contact An Agent:










































