Rock Hill
South CarolinaWelcome to Rock Hill
Homes for Sale In Rock Hill
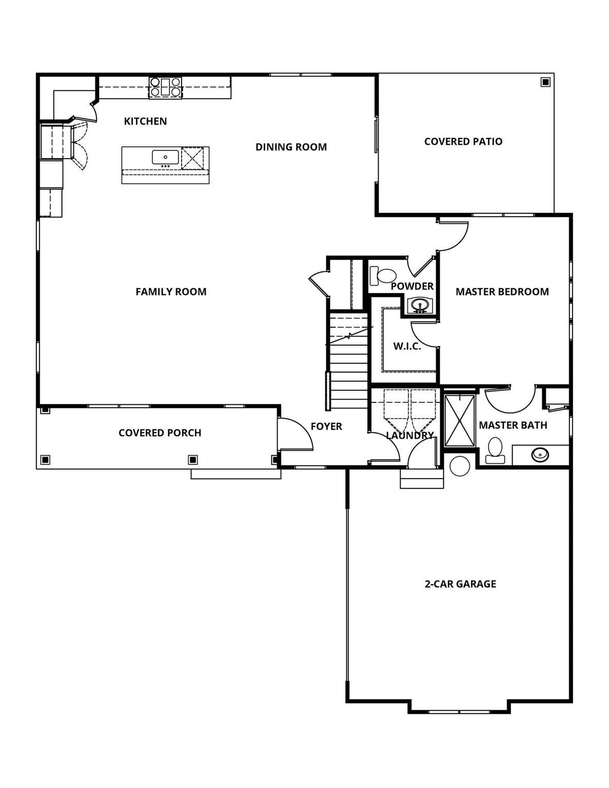
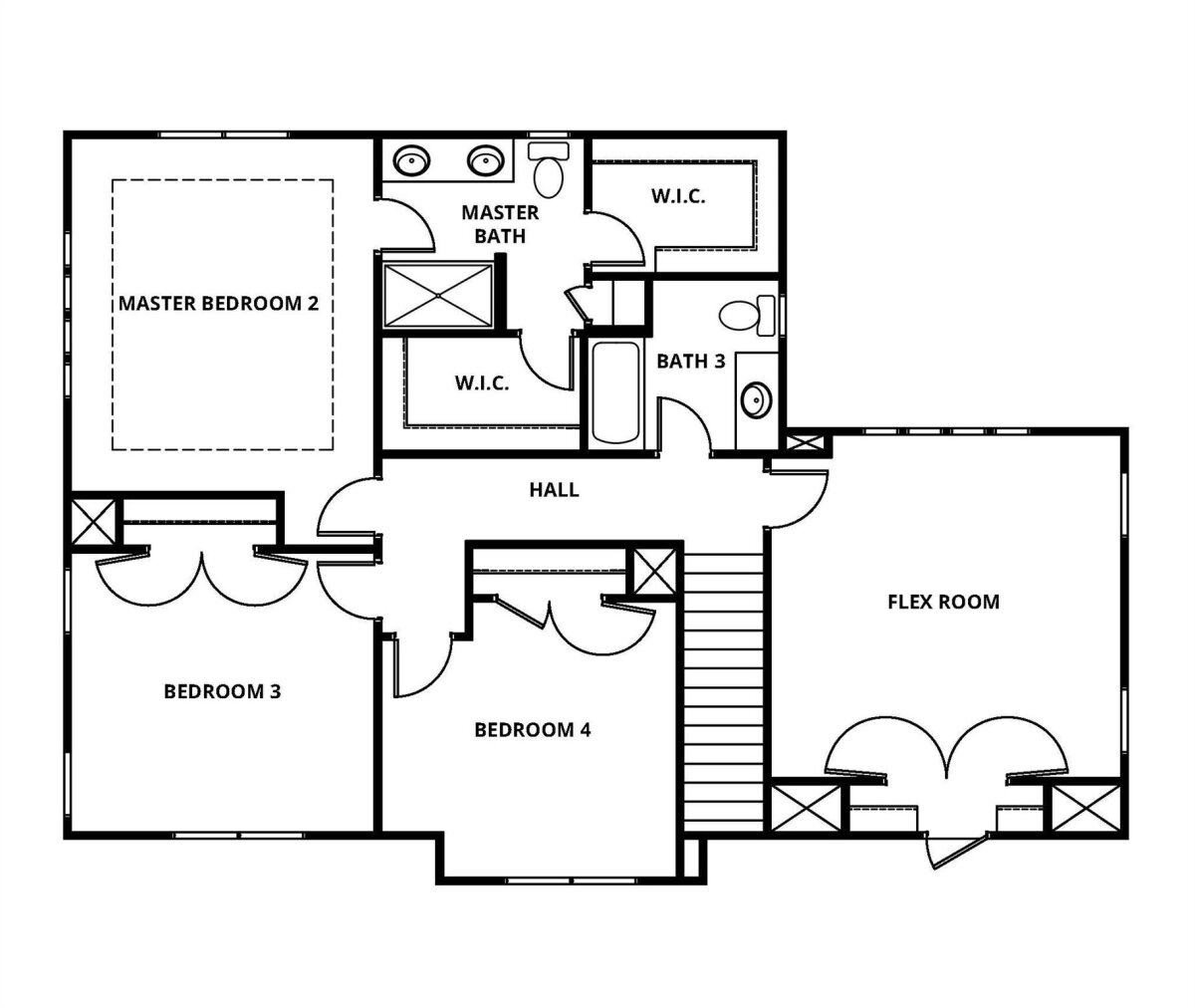
Situated on a wooded cul-de-sac lot at the back of the neighborhood, spacious, open living is what you will find in the Williamsburg floor plan. With a wide array of rooms and spaces, this floor plan is bound to have everything you need! This five-bedroom, three-and-a-half-bath home is truly the home every entertainer dreams of. With one bedroom with en-suite bath on the first floor, it is the perfect home for those needing an in-law suite or separate space for guests. The chef-inspired kitchen is the main focal point of the first floor. This open kitchen connects to the family room and dining room, allowing you to be close to everything. You will find quartz countertops with large island, stainless steel appliances and tiled backsplash. Need more space downstairs to entertain? No problem, walk through the doors off the dining area, and you can extend your gathering to the covered outdoor living area. With so much room, the Williamsburg is one of the most flexible floor plans, with surprises around every corner. Please ask about our builder incentives.
| MLS#: | 4312829 |
| Price: | $609,900 |
| Square Footage: | 2690 |
| Bedrooms: | 5 |
| Bathrooms: | 3.1 |
| Acreage: | 0.32 |
| Year Built: | 2025 |
| Type: | Single Family Residence |
| Listing courtesy of: | LGI Homes NC LLC - msceau@lgihomes.com |
Contact An Agent:





























