Mint Hill
North CarolinaWelcome to Mint Hill
Homes for Sale In Mint Hill
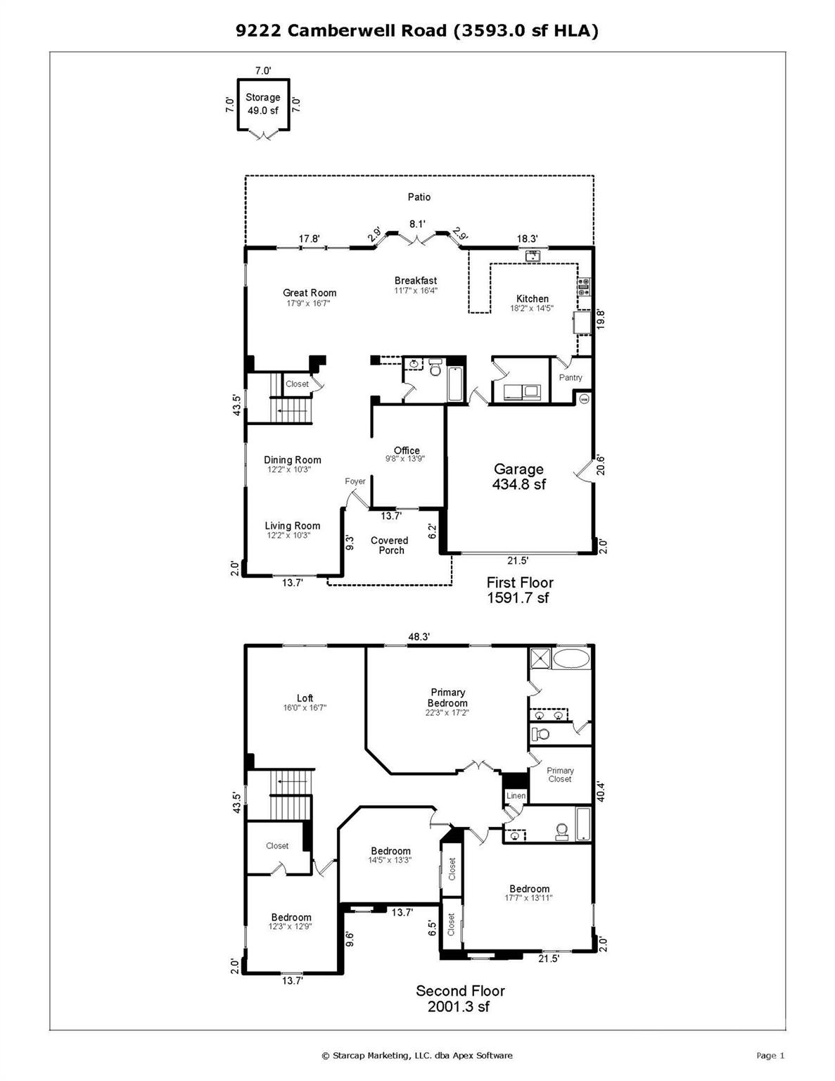
Welcome to 9222 Camberwell Road — a spacious and versatile home offering 3,593 square feet of heated living space thoughtfully designed to accommodate today’s flexible lifestyle. With 4 bedrooms, a Loft, 3 full bathrooms, and generous living areas on both levels, this home provides plenty of room to spread out, entertain, work from home, or host guests with ease. The first floor features a well-designed layout that includes a formal Living Room and Dining Room, along with a dedicated Office ideal for remote work or a quiet study space. A beautifully upgraded full bathroom on the main level showcases a custom sink and vanity, adding both style and modern function. The large Great Room flows seamlessly into the Breakfast area and expansive Kitchen — truly the heart of the home and designed for both everyday living and entertaining. You’ll appreciate the generous granite counter space, highlighted by a spacious breakfast bar with seating for four stools, perfect for casual meals or gathering with guests. The kitchen also features a tile backsplash, smooth top range, built-in microwave, and a walk-in pantry complete with convenient slide-out shelving for optimal organization. The adjoining breakfast area offers French doors that open to the outdoor patio, creating an effortless indoor-outdoor connection ideal for morning coffee, grilling, or relaxing in the evening. Upstairs, the second level offers exceptional flexibility. The spacious Primary Suite includes an en-suite bath with a jetted tub, glass-enclosed shower, and walk-in closet. Three additional generously sized bedrooms and a large Loft provide endless possibilities — whether used as a media room, playroom, second living area, or home gym. Outdoor living is equally inviting, with a backyard patio featuring a pergola that creates a comfortable setting for entertaining, relaxing, or enjoying Carolina evenings. A 434-square-foot garage offers ample storage and parking. Ideally located with convenient access to Mint Hill and Uptown Charlotte, this home strikes the perfect balance between suburban comfort and city convenience. If you’re looking for space, functionality, and flexibility in a prime location, this home delivers.
| MLS#: | 4351789 |
| Price: | $425,000 |
| Square Footage: | 3593 |
| Bedrooms: | 4 |
| Bathrooms: | 3 |
| Acreage: | 0.28 |
| Year Built: | 2007 |
| Type: | Single Family Residence |
| Listing courtesy of: | 1st Choice Properties Inc - annagrangerhomes@gmail.com |
Contact An Agent:
























