Matthews
North CarolinaWelcome to Matthews
Homes for Sale In Matthews
 
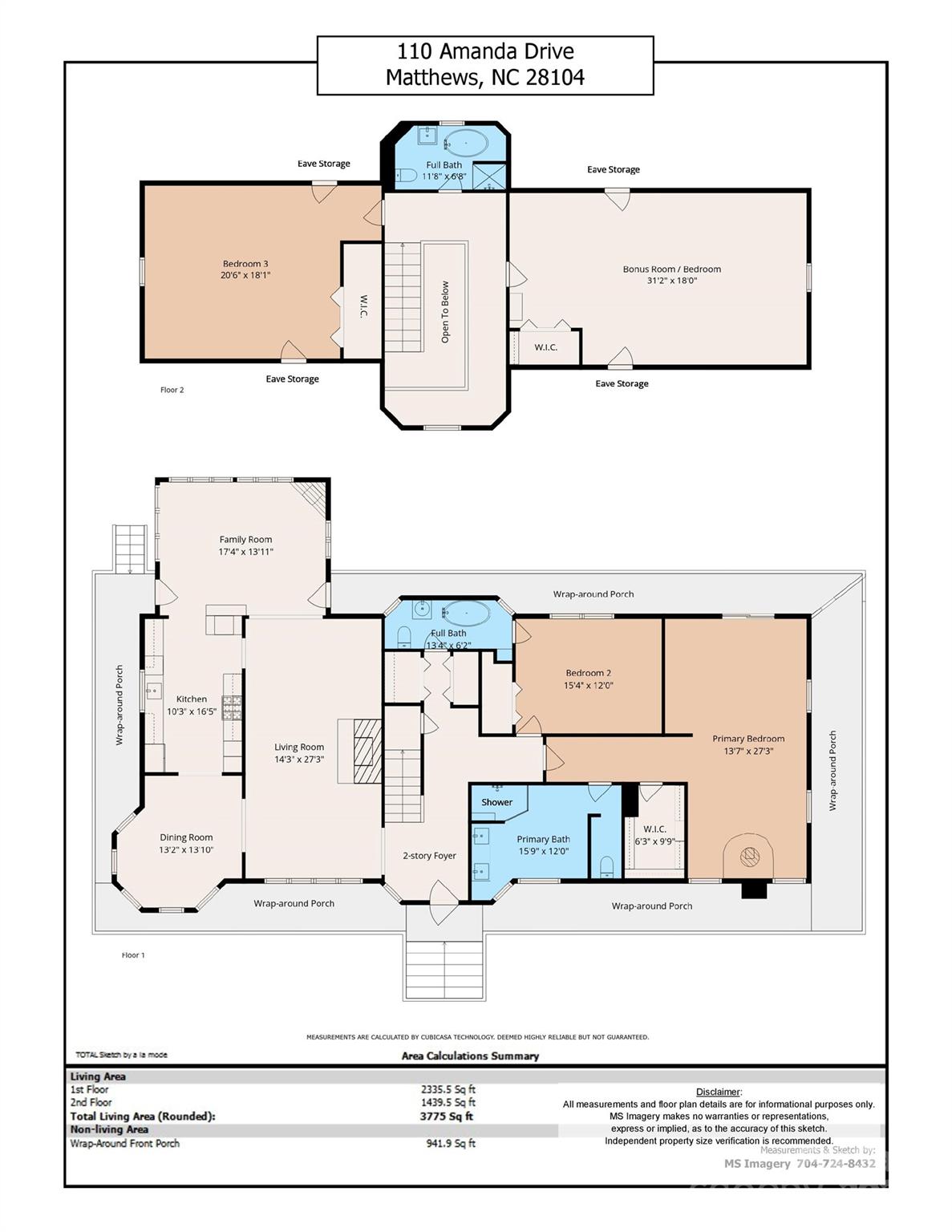
      Enjoy this rare opportunity to own a 3.29-acre private estate yet just minutes from downtown Matthews, Waverly, Rea Farms and I-485. This charming 2-story home blends serene Low Country/Farmhouse style with modern updates. Heart of pine hardwoods, solid wood doors, handcrafted cabinetry with punch-tin accents, new quartz countertops, fresh backsplash, and warm wood details throughout create an inviting and timeless ambiance.The main-level primary suite features an updated and spacious bathroom with a walk-in shower. Cozy up in the bedroom with the wood-stove or enjoy your morning coffee with direct porch access. You'll find a secondary bedroom and full bath on the main. The great room featuring a wood-burning fireplace, plus dining and sunroom, provide comfortable everyday living. Upstairs offers a massive bedroom and a huge bonus room ideal for office, media, or flex use — with a shared full bath.Enjoy the outdoors from the true wrap-around porch or the patio. A detached workshop is wired and can be converted into a garage and provides great storage. No HOA and over 3 acres in highly sought-after Weddington schools — nearly impossible to find! Come experience this one-of-a-kind property that is full of history and custom workmanship! The mantel is a reclaimed church pew and the front door is from the original Hotel Charlotte (1924-1988). SHOWINGS START SATURDAY, NOV 1!
| MLS#: | 4315348 | 
| Price: | $1,000,000 | 
| Square Footage: | 3775 | 
| Bedrooms: | 3 | 
| Bathrooms: | 3 | 
| Acreage: | 3.29 | 
| Year Built: | 1983 | 
| Type: | Single Family Residence | 
| Listing courtesy of: | Helen Adams Realty - kellis@helenadamsrealty.com | 
Contact An Agent:
 
					









































