Gastonia
North CarolinaWelcome to Gastonia
The city is a historic center for textile manufacturing and was the site of the Loray Mill Strike of 1929, which became a key event in the labor movement. While manufacturing remains important to the local economy, the city also has well-developed healthcare, education, and government sectors.
Listings
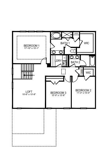
Come see 4243 Round Table Drive located in Gastonia, North Carolina! The Edisto is a spacious two-story home offered at Avalon in Gastonia, NC. The home features four bedrooms, 3 bathrooms, plus a loft as well as two-car garage. The open concept layer connects the home beautifully, where the inviting foyer greats you upon entering the home and opens you a bedroom and bath on the main level. You are then welcomed into the heart of the home, where the kitchen, dining and large family room meet to create a relaxing atmosphere. The kitchen’s stainless-steel appliances, ample cabinet space, large pantry and a center island make it perfect for cooking and entertaining. Upstairs you will discover a large primary suite with a walk-in closet and an en-suite bathroom with dual vanities and a separate tub and shower. The additional two bedrooms provide privacy and comfort and share access to a secondary bathroom. A loft space on the second floor can be used as a media room, home office, or playroom. Additional features include a laundry room, ample storage closets, and large windows for natural light. With its thoughtful design, spacious layout, and modern conveniences, the Edisto is the perfect place to call home. Pictures are representative.
| MLS#: | 4346196 |
| Price: | $490,390 |
| Square Footage: | 2662 |
| Bedrooms: | 4 |
| Bathrooms: | 3 |
| Acreage: | 0.14 |
| Year Built: | 2026 |
| Type: | Single Family Residence |
| Listing courtesy of: | DR Horton Inc - mcwilhelm@drhorton.com |
Contact An Agent:

