Denver
Denver, North CarolinaWelcome to Denver
Homes for Sale In Denver
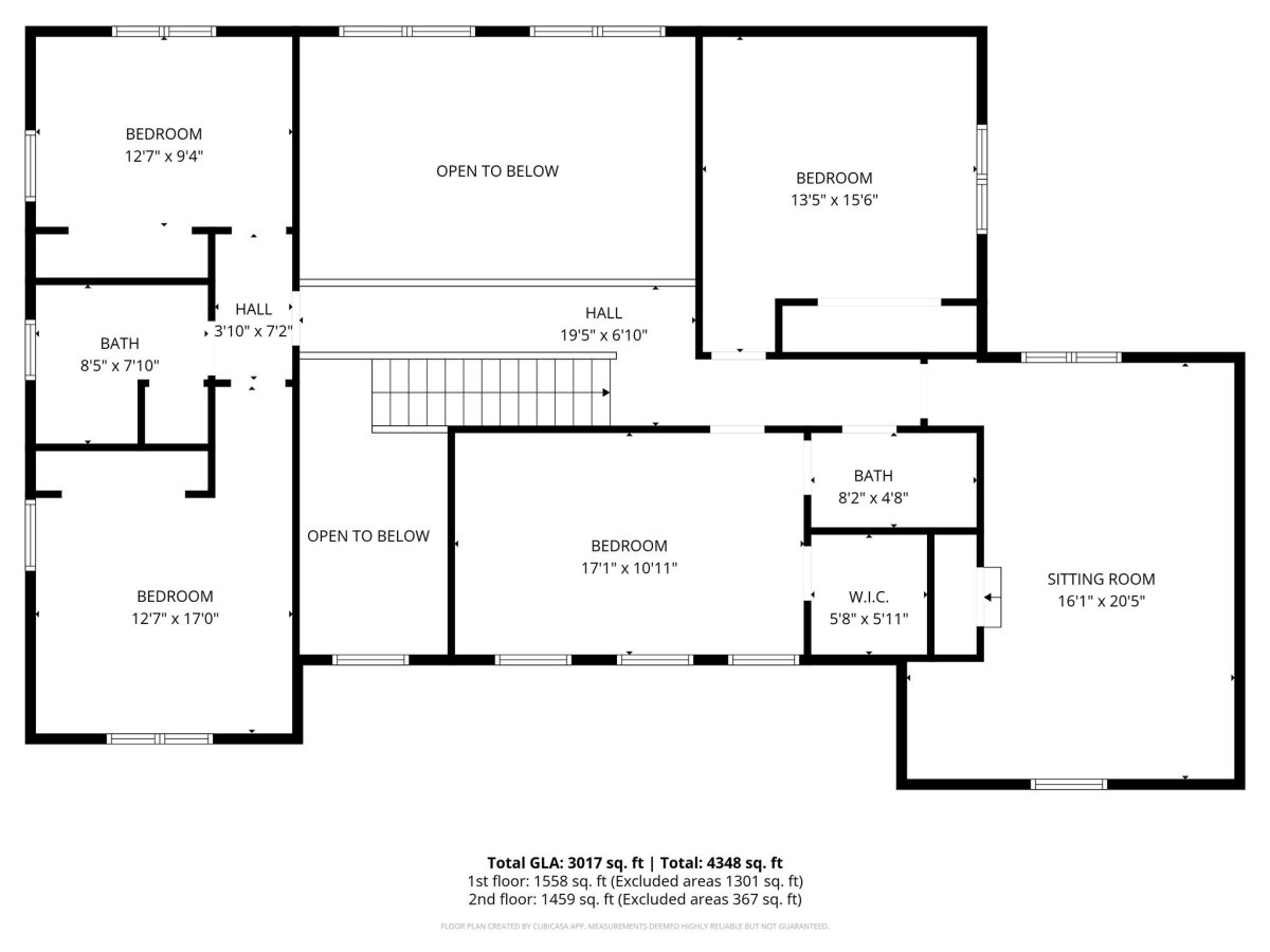
Welcome to this stunning full brick 5-bedroom, 3.5-bath home in the highly sought-after Lakewood community! Situated on just under half an acre, this beautifully maintained property offers space, privacy, and exceptional upgrades inside and out. Step inside to a grand two-story foyer and soaring living room filled with natural light. The thoughtfully designed floor plan features a spacious secondary living area, a chef’s kitchen perfect for entertaining, and a bright breakfast nook overlooking the backyard oasis. The main-level primary suite is a private sanctuary, complete with two walk-in closets and a spa-inspired bath featuring a garden tub with serene views of your private backyard waterfall. Upstairs, you’ll find four additional bedrooms, two full bathrooms, and a versatile bonus room ideal for a media room, playroom, or home office. Outside, enjoy a fully fenced backyard with mature trees, a large deck, and a paver patio—perfect for gatherings. With full irrigation in place, the yard stays healthy and green without the hassle—giving you more time to enjoy your backyard retreat or head out for a day on the water. In spring and summer, the lush landscaping flourishes to create incredible privacy. Even better, with community common areas directly across and beside the home, you’ll enjoy protected green space and added seclusion. Major updates include a new roof (2020), both HVAC units (2021), a fully encapsulated crawl space (2025), and an EV charging station. Lakewood residents enjoy gated boat storage for a reasonable annual fee and are just one mile from boat launch access. Just a short distance to shops and restaurants and located in a desirable school district, this home truly offers the perfect balance of comfort, convenience, and lifestyle. Beyond photos—this one is a must see in person. Showings start 3/8!
| MLS#: | 4352236 |
| Price: | $749,728 |
| Square Footage: | 3017 |
| Bedrooms: | 5 |
| Bathrooms: | 3.1 |
| Acreage: | 0.47 |
| Year Built: | 2007 |
| Type: | Single Family Residence |
| Virtual Tour: | Click here |
| Listing courtesy of: | United Real Estate-Queen City - sethhastings.realtor@gmail.com |
Contact An Agent:












































