Clover
Clover, South CarolinaWelcome to Clover
Homes for Sale In Clover
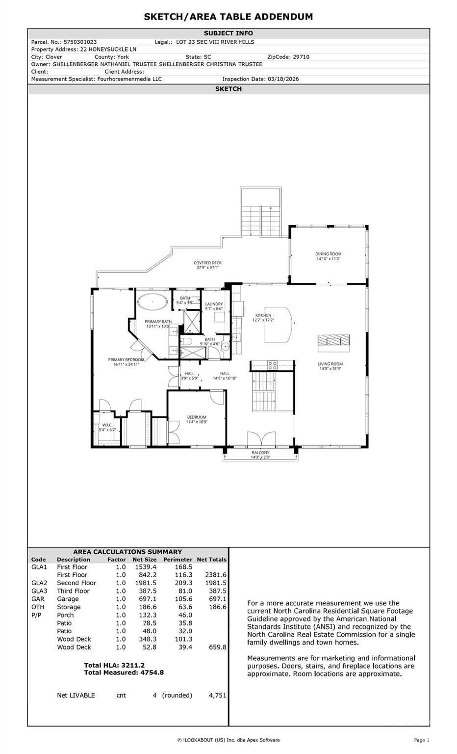
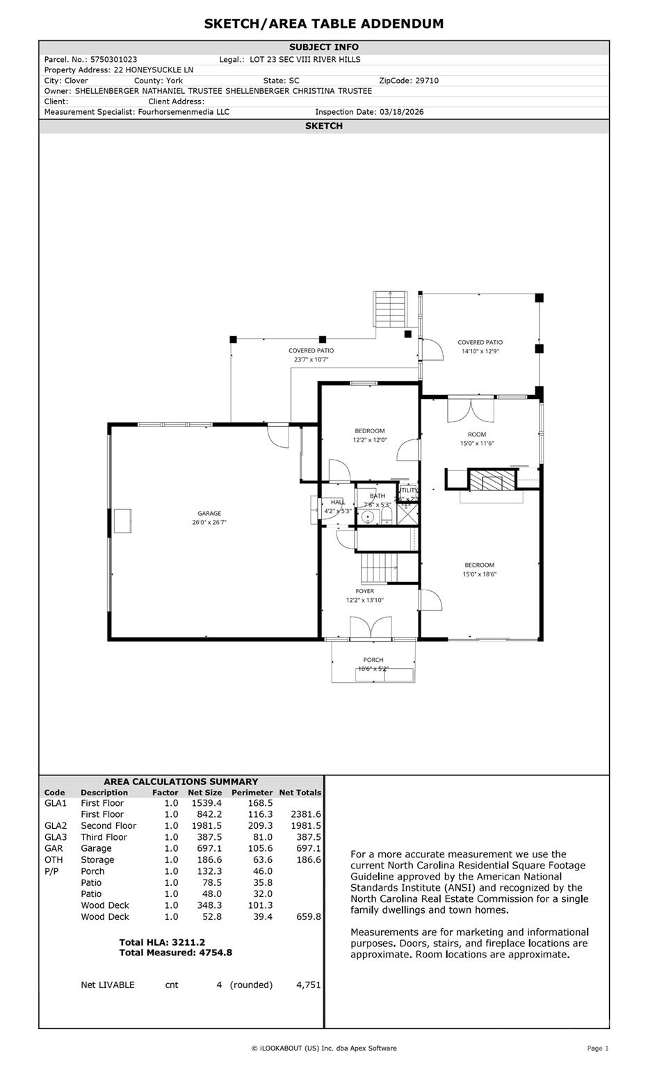
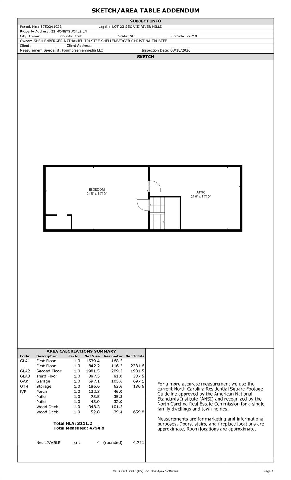
22 Honeysuckle Lane
$799,000 Active
Subdivision: River Hills
A cul-de-sac setting and golf course backdrop define this River Hills property. Inside, over 3,200 square feet unfolds into multiple living areas, including a refreshed primary suite and a lower level designed for privacy and versatility. Currently configured as 4 bedrooms with an additional bonus room that can function as a 5th bedroom. The home balances character and function, offering space that adapts easily to guests, work, or multi-generational living. All of this sits within a gated community known for its established feel, tree-lined streets, and access to golf, lake, and outdoor amenities.
Back to Property List
Basic Information
| MLS#: | 4357913 |
| Price: | $799,000 |
| Square Footage: | 3212 |
| Bedrooms: | 4 |
| Bathrooms: | 3 |
| Acreage: | 0.38 |
| Year Built: | 1972 |
| Type: | Single Family Residence |
| Listing courtesy of: | Keller Williams Connected - Jenn@jennfinnegan.com |
Contact An Agent:









































